海灣常用83系列消防模塊接線圖大全
海灣常用83系列消防模塊接線圖大全
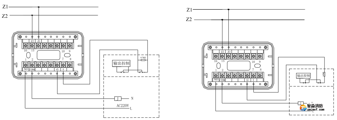
海灣GST-LD-8300B輸入模塊,用于接收消防聯動設備輸入的常開或常閉開關量信號,并將聯動信息傳回火災報警控制器(聯動型)。
主要用于配接現場各種主動型設備如水流指示器、壓力開關、位置開關、信號閥及能夠送回開關信號的外部聯動設備等。這些設備動作后,輸出的動作信號可由模塊通過信號二總線送入火災報警控制器,產生報警,并可通過火災報警控制器來聯動其它相關設備動作。
此模塊用于連接需要火災報警控制器控制的消防聯動設備,如排煙閥、送風閥、防火閥等,并可接收設備的動作回答信號。

模塊輸入端如果設置為“常閉檢線”狀態輸入,模塊輸入線末端(遠離模塊端)必須串聯一個4.7kΩ的終端電阻;模塊輸入端如果設置為“常開檢線”狀態輸入,模塊輸入線末端(遠離模塊端)必須并聯一個4.7kΩ的終端電阻。
海灣GST-LD-8300B輸入模塊與現場設備的接線:
a.模塊與具有常開無源觸點的現場設備連接方法如圖①所示。模塊輸入設定參數設為常開檢線。
b.模塊與具有常閉無源觸點的現場設備連接方法如圖②所示,模塊輸入設定參數設為常閉檢線。


海灣GST-LD-8301A輸入/輸出模塊模塊用于連接需要火災報警控制器控制的消防聯動設備,如排煙閥、送風閥、防火閥等,并可接收設備的動作回答信號。

模塊輸入端如果設置為“常開檢線”狀態輸入,模塊輸入線末端(遠離模塊端)必須并聯一個4.7kΩ的終端電阻;模塊輸入端如果設置為“常閉檢線”狀態輸入模塊輸入線末端(遠離模塊端)必須串聯一個4.7kΩ的終端電阻。
輸出控制電壓可由被控設備提供,若被控設備不能提供,可從模塊DC24V電源側取電。模塊無源輸出觸點控制設備,模塊與被控制設備的接線示意圖如圖2-39圖2-40(圖①輸入常開檢線,圖②入常閉檢線):

①

②
注意:部分防火卷簾控制器、電梯控制箱等設備因其采用比較器或邏輯電平類輸入、啟動電流微小,容易受到線路或空間干擾自身產生誤動作,不建議使用。如果必須使用,應參照被控設備的說明書在被控設備內并接電阻(一般可以在控制端和控制地間加4.7K電阻)或在海灣GST-LD-8301A模塊和被控設備間加中間繼電器解決。不應將模塊觸點直接接入交流控制回路,以防強交流干擾信號損壞模塊或控制設備。
海灣GST-LD-8302切換模塊專門用來與海灣GST-LD-8301A型模塊配合使用,實現對現場大電流(直流)啟動設備的控制及交流220V設備的轉換控制,以防由于使用海灣GST-LD-8301A型模塊直接控制設備造成將交流電源引入控制系統總線的危險。

本模塊為非編碼模塊,不可直接與控制器總線連接,只能由海灣GST-LD-8301A模塊控制。模塊具有一對常開、常閉輸出觸點。
控制交流設備的方法如下圖所示:

海灣GST-LD-8302A雙動作切換模塊是一種專門設計用于與GST-LD-8303輸入/輸出模塊連接,實現控制器與被控設備之間作交流直流隔離及啟動、停動雙動作控制的接口部件。

本模塊為一種非編碼模塊,不可與控制器的總線連接。模塊有二對常開、常閉輸出觸點,可分別獨立控制。
海灣GST-LD-8302A型模塊電氣原理圖如下圖:

海灣GST-LD-8302A型模塊電氣原理圖

被控設備電氣回路

電機回路
海灣GST-LD-8302C切換模塊主要用于重要設備的啟動、停動控制。與具有斷路、短路檢測功能的多線制控制盤配合使用,如海灣GST-LD-KZ014型多線制控制盤等。

本模塊提供一組常開、常閉觸點,使多線制控制盤與外部控制設備電氣隔離。用兩線實現啟動控制及回答、短路、斷路檢測,便于現場布線。電路部分和接線底殼采用插接方式,接觸可靠、便于施工。
利用二個海灣GST-LD-8302C切換模塊可完成對交流設備的啟停控制,如下圖所示:

海灣GST-LD-8303輸入/輸出模塊是一種總線制控制接口,可用于完成對二步降防火卷簾門、水泵、排煙風機等雙動作設備的控制。主要用于防火卷簾門的位置控制,能控制其從上位到中位,也能控制其從中位到下位,同時也能確認防火卷簾門是處于上、中、下的哪一位。該模塊也可作為兩個獨立的海灣GST-LD-8301A輸入/輸出模塊使用。

模塊輸入端如果設置為“常開檢線”狀態輸入,模塊輸入線末端(遠離模塊端)必須并聯一個4.7kΩ的終端電阻;模塊輸入端如果設置為“常閉檢線”狀態輸入模塊輸入線末端(遠離模塊端)必須串聯一個4.7kΩ的終端電阻。
a. 模塊與防火卷簾門電氣控制箱(標準型)接線示意圖如圖①源常開觸點輸入,有源輸出控制型)、圖②(無源常閉觸點輸入,有源輸出控制型)、圖③(無源輸出控制型,輸出檢線電壓由被控設備提供,輸入觸點的接法參見圖①和②):
①



b. 海灣GST-LD-8303型模塊與海灣GST-LD-8302A型模塊組合連接的方法如下圖所示

海灣GST-LD-8306輸入模塊用于配接各種類型的防盜探測器,可為防盜探測器提供DC12V/100mA電源,與感煙、感溫等火災探測器共同組成防火、防盜綜合報警系統。輸入模塊設有信號輸入端,用于和防盜探測器的開關量無源輸出觸點連接,可將防盜探測器的動作信息傳回火災報警控制器。輸入方式可設為常開檢線、常閉檢線。考慮到防盜探測器功耗較高,在實際使用時,輸入模塊除與火災報警控制器的信號二總線連接外,另需接二根DC24V電源線。

輸入模塊與常開無源觸點的防盜探測器接線示意圖如圖①所示;與常閉無源觸點的防盜探測器接線示意圖如圖②所示。

①

②
海灣GST-LD-8360H輸入模塊,用于接收消防聯動設備輸入的常開或常閉開關量信號,并將聯動信息傳回火災報警控制器(聯動型)。主要用于配接現場各種主動型設備如水流指示器、壓力開關、位置開關、信號閥及能夠送回開關信號的外部聯動設備等。這些設備動作后,輸出的動作信號可由模塊通過信號二總線送入火災報警控制器,產生報警,并可通過火災報警控制器來聯動其它相關設備動作。

模塊為兩線制低功耗設計,無需外加24V供電供電。
(1)模塊與具有常開無源觸點的現場設備(以水流指示器為例)連接方法如圖①所示(以輸入端口1為例)。
(2)模塊與具有常閉無源觸點的現場設備(以信號閥為例)連接方法如圖②所示(以輸入端口1為例)。
(3)模塊配置成單地址時輸入端口1正常工作,輸入端口2不檢線,處于懸空狀態即可。
①

②
海灣GST-LD-8361H輸入/輸出模塊,主要用于連接需要火災報警控制器控制的消防聯動設備。

主要應用兩種情形:1)被控設備控制端口提供12V~48V檢線電壓的場合,如卷簾門、消防電梯等;2) 需要DC24V有源控制(持續輸出)的場合,如電磁閥、非編碼聲光等,并可接收設備的動作回答信號。
模塊為兩線制低功耗設計,無需外加24V供電供電。
輸出控制電壓由被控設備提供,模塊與被控制設備的接線示意圖如圖①、圖②所示(圖①為常開輸入檢線,圖②為常閉輸入檢線)。

①

②
海灣GST-LD-8362H輸入/輸出模塊,主要用于控制AC220V的消防聯動設備,如照明切電、消防水泵、風機等,并可接收設備的動作回答信號。

模塊為兩線制低功耗設計,無需外加24V供電供電。
(1)當AC220V電壓由被控設備提供時,模塊與被控設備的接線示意圖如圖2-66所示(圖a中模塊輸入檢線方式為常開檢線,圖b中模塊輸入檢線方式為常閉檢線)。

(2)當外接AC220V時,模塊與AC220V給被控設備(以風機為例)的接線示意圖如下圖所示。

海灣GST-LD-8364H輸入/輸出模塊,總線供電,主要用于專門應用在需要DC24V有源控制(脈沖輸出)的場合,如排煙閥、送風閥、電動防火閥等,可接收并上傳設備的反饋回答信號。

模塊為兩線制低功耗設計,無需外加24V供電供電。
模塊與被控制設備的連接線示意圖如下圖所示。其中圖①輸入檢線方式為常開檢線,圖②為常閉檢線方式。

①

②
海灣GST-LD-8327H環型總線接口(以下簡稱接口),主要用于環型總線組網。每個接口可組建2個回路,每個回路地址固定為242。當環型總線出現斷路或短路時,接口繼電器動作,輸入口輸出總線信號,并向控制器報傳動作信息。線路故障排除后需通過控制器復位命令復位接口。

以回路1為例:接口的總線輸入端Z+、Z-接控制器總線輸出端,接口的ZO+、ZO-接其他編碼設備,總線最末端接回到接口的ZI+、ZI-。系統接線圖如圖2-73所示。2個相鄰環線隔離器之間不能超過32個設備(支線中的設備也需要計算在內)。

注意:接口端子有極性。
海灣GST-LD-IE8301輸入/輸出模塊,是一款功能強大、應用廣泛的編碼工業模塊。模塊可以通過設置不同的工作模式,實現下列功能:啟動消防聯動設備,如排煙閥、送風閥、防火閥等,同時接收設備的動作回答信號。模塊不能用于氣體滅火設備的控制。

模塊在工作模式1工作時,與外部設備的連接如圖①所示。

圖①
模塊在工作模式2工作時,與外部設備的連接如圖②所示。

圖②
模塊在工作模式3工作時,與外部設備的連接如圖③所示。

圖③
模塊在工作模式1、模式2、模式3工作時,輸入或輸出端如果不使用,需按圖④所示連接終端電阻。

圖④
海灣消防公司主營:海灣消防報警系統銷售,消防設備安裝,海灣氣體滅火、海灣電氣火災、消防水噴淋系統施工安裝,售后維修,海灣消防網站:http://www.cqcpsy.cn/;海灣消防服務熱線:4006-598-119
本頁關鍵詞:海灣常用83系列消防模塊接線圖大全
上一篇:自噴系統的常見故障分析處理 下一篇:電動開窗機的推拉力計算


蘇公網安備32058102002147號